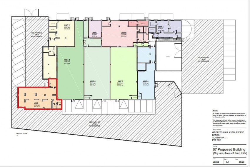
Granite House, Unit 1, Greaves Hall Avenue East, Banks, Southport, PR9

Available £14,950 Per Annum

  • Self-contained former showroom with excellent natural light
  • Four allocated car parking spaces (potential for more) & ramped entrance
  • Flexible open-plan layout suitable for alternative uses (subject to planning)
  • Well-appointed kitchen & WC facilities
  • No VAT payable

Unit 1 offers a modern, self-contained showroom/office unit finished to a high standard. The property features:

Large full-height glazed frontage, providing excellent natural light and high visibility from the front elevation.

Open-plan floor space with flexible layout, suitable for office, retail, showroom, or other business uses (subject to planning).

Four allocated car parking spaces to the front of the unit, but with potential for more, with a ramped entrance for accessibility.

Well-appointed kitchen and WC facilities, with contemporary finishes throughout. Has benefit of A/C cooling & heating.

Excellent lighting, with recessed ceiling spotlights across the main floor area.

Feature granite wall display to the entrance area, highlighting the building's character.

The site plan shows Unit 1 located prominently at the corner of the development, benefitting from a self-contained layout and immediate access to the parking area at the front.

Similar Properties