13 St Helens Road, Ormskirk, Lancashire, L39

Under offer £595,000 for the Freehold

  • Fully let mixed-use investment property
  • New 15-year dental lease to be granted on or before completion
  • Draft lease available on request
  • Total income currently approx £43,346 per annum
  • Freehold with Land Registry documentation available
  • Tenants remain fully unaffected by the sale
  • Residential rental uplift potential
  • Electrical and gas safety documentation available
  • Attractive period building close to university, hospital & rail connections

The Mansion House is an attractive period building arranged over three floors, comprising:

Ground Floor: Dental practice
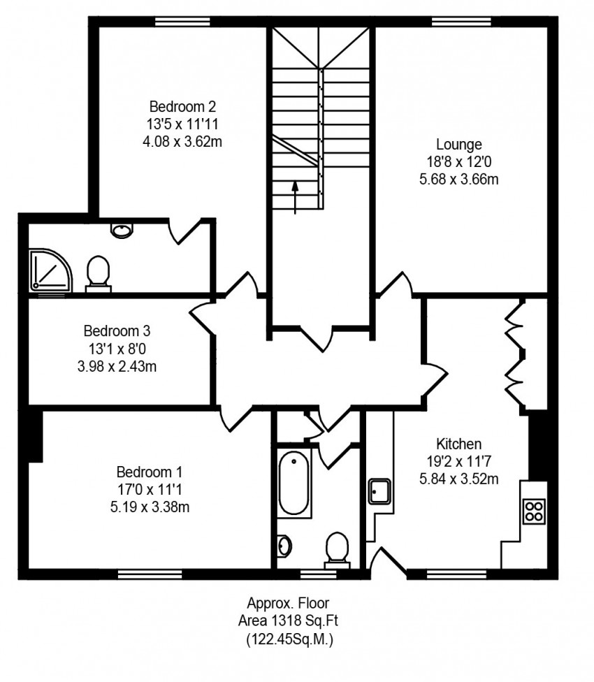
First Floor: Large 3-bedroom apartment (Flat 2)
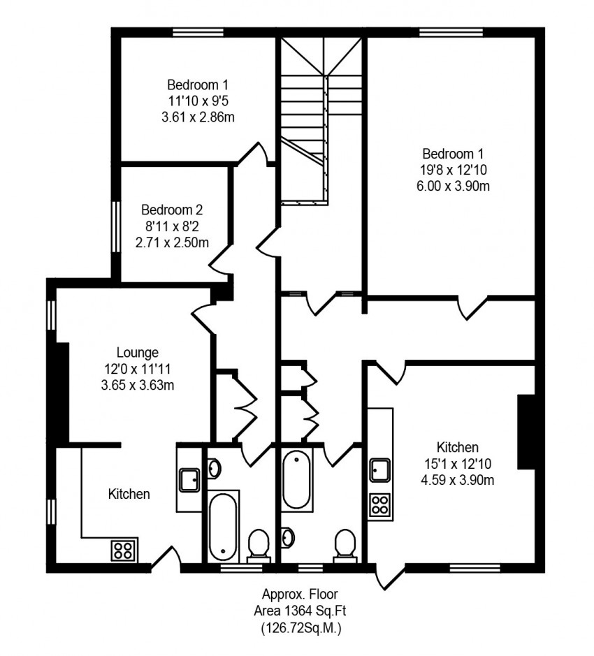
Second Floor: One-bedroom flat with two garages (Flat 3) and a two-bedroom flat (Flat 4)
Features include:
Decorative brick façade
Large sash and bay windows
High ceilings throughout
Private driveway with access to two garages
Rear parking

Property: Mansion House, 13 St Helens Road, Ormskirk, L39 4QJ
Asset Class: Fully-let mixed-use investment
Asking Price: £595,000
Total Passing Rent: £42,156.80 per annum
Gross Initial Yield: 7.29% on the current rental income

Income Breakdown: Dental Practice (Ground Floor)
A new 15-year lease at £23,000 per annum will be granted on or before completion, ensuring secure commercial income from day one.
Details of the proposed limited company dental practice tenant will be made available on completion, and a copy of the draft proposed lease is available on request.

Three Residential Units:
Flat 1 - Large 3-bedroom first-floor apartment (1,318 sq ft)
Flat 3 - One-bedroom second-floor flat with two private garages
Flat 4 - Two-bedroom second-floor flat
All existing tenants remain fully unaffected by the sale.

Compliance Documentation:
Asbestos Management Report - No asbestos present
Electrical Safety Certificates - available
Gas Safety Certificates - available

DENTAL PRACTICE - GROUND FLOOR
A long-established dental practice occupies the full ground floor and basement.
New 15-Year Lease - Granted On or Before Completion
The vendor will grant a new 15-year commercial lease at initial rent of £23,000 per annum on or before
completion, ensuring:
Cashflow certainty from day one
No void periods
No lease negotiation risk post-purchase
Details of the proposed limited company dental practice will be provided on completion.
A copy of the draft proposed lease is available on request.
Practice Features
Dedicated patient entrance and prominent signage
Spacious reception and waiting room
Several treatment rooms with dental equipment
Excellent natural light
Sterilisation and staff areas
Suitable for ongoing medical/dental Class E use
Rear parking

DENTAL PRACTICE LEASE - KEY TERMS
Rent: £23,000 per annum
Term: 15 years
Timing: Lease granted on or before completion
Break Options: Tenant-only at years 5 & 10
Rent Reviews: Open-market reviews at years 5 & 10
Repairing: Internal repairing; Schedule of Condition
Use: Class E - Dental / Medical

Details of the proposed tenant company will be available on application. Draft lease available on request.

RESIDENTIAL ACCOMMODATION
Tenants in all three residential units remain unaffected by the sale and continue under their existing ASTs.
Flat 1 - First Floor (Large 3-Bedroom Apartment - 1,318 sq ft)
Rent: £660 pcm / £7,920 pa
Deposit: £595
Accommodation includes:
Large entrance hallway
Generous dining kitchen
Three double bedrooms
Bathroom
High ceilings and excellent natural light
A substantial apartment rarely found in the Ormskirk rental market.

Flat 3 - One-Bedroom Apartment + Two Lock-Up Garages (Second Floor)
Rent: £375.54 pcm / £4,506.48 pa
Deposit: £0
Accommodation comprises:
Living room
Kitchen
Double bedroom
Bathroom
Two private garages included

Flat 4 - Two-Bedroom Apartment (Second Floor)
Rent: £660 pcm / £7,920 pa
Deposit: £760
A well-presented flat offering:
Open-plan living and kitchen area
Two double bedrooms
Modern interior finishes

Copies of the AST agreements are available on request.

Similar Properties