Union Street, Southport, Merseyside, PR9 0QE

Available £9,950 Per Annum

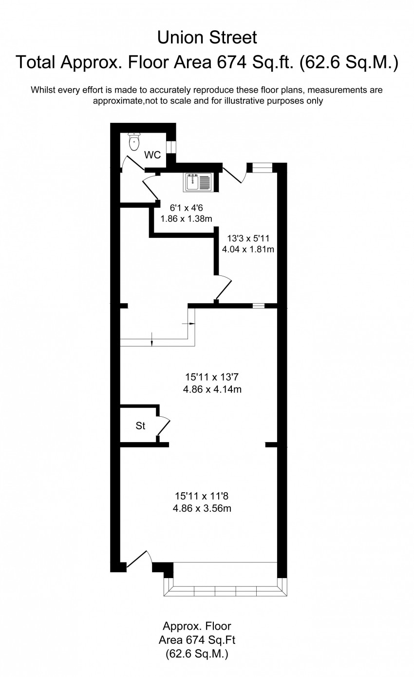
  • Self-contained retail unit, approximately 600 square feet NIA.
  • Primarily open plan and well presented throughout.
  • Available by way of a new lease.
  • No VAT on rental.

The property is an attractive bay window fronted retail unit, being primarily open plan with recessed and surface mounted light fittings, alarm, electric wall mounted spacing heating, in addition to a rear store, kitchenette and WC area.

Nb. Photographs are indicative, taken prior to the outgoing tenant's fit out.

Similar Properties