11a - 15 Oxford Road, Birkdale, Southport, PR8

Under offer £395,000 Guide Price

  • Cleared development site with planning consent in place.
  • Two remaining plots (11a & 15), each suitable for a large detached three/four storey dwelling (approx. 586 sq m).
  • Available individually at £395,000 each.
  • Highly prestigious and established location in Birkdale near Southport.
  • 999-year long leasehold Title.
  • Exceptional opportunity for self-build projects.
  • Conditional proposals for alternative schemes may also be considered.

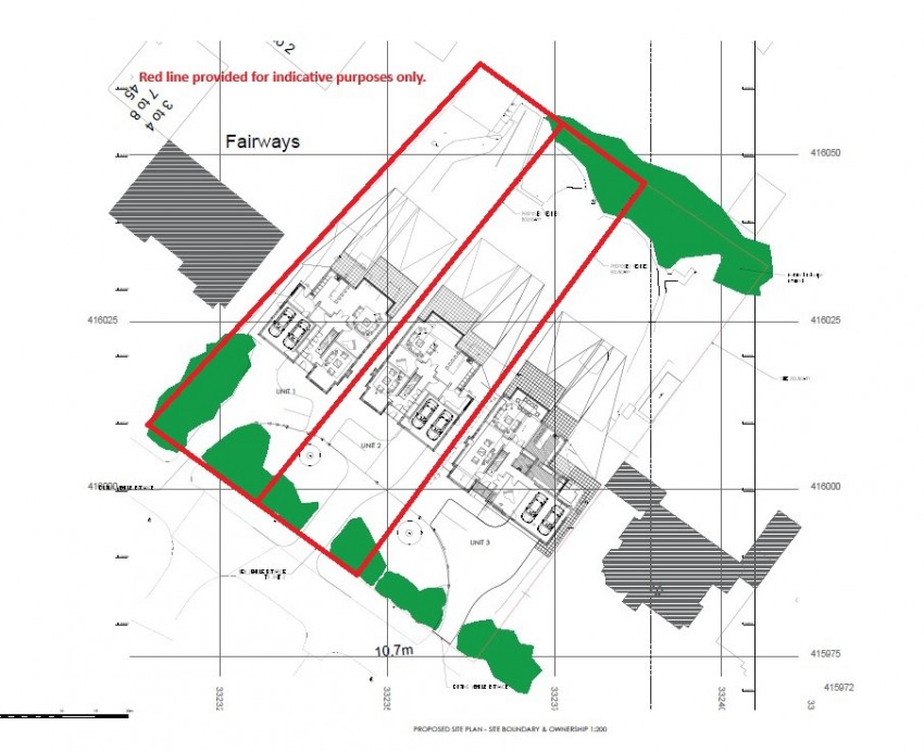
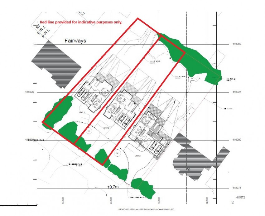
The cleared site has full planning permission (DC/2021/00789) for the demolition of a former nursing home and the construction of three substantial detached dwellings. One dwelling is now fully constructed and complete, leaving two prime plots available for purchase.

Each remaining plot has consent for a three/four-storey detached home extending to approximately 586 sq m (6,300 sq ft) with integral garaging. These homes offer the scope to create substantial accommodation on one of Southport's most exclusive roads.

The plots are available at £395,000 each and can be purchased individually or together. This represents a rare opportunity for self-build buyers to design and deliver a home tailored to their own requirements, either by following the existing consented plans or seeking a bespoke scheme subject to planning.

The generous scale of the plots offers the flexibility to incorporate premium lifestyle features such as open-plan living spaces, gym or cinema rooms, landscaped gardens, home offices and multi-vehicle garaging. Few opportunities exist in Birkdale to acquire self-build plots of this quality and prominence.

Similar Properties