The Arch Workspace, 135a Rufford Road, Southport, Southport, PR9

Available £450 Per Month

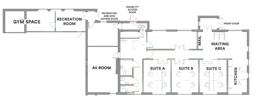
  • Individual Suites To Let. Flexible Rentals.
  • Offices set in a beautiful former Methodist Church with original features and a modern refurbishment.
  • High Speed Fibre Internet.
  • The Arch Offers a meeting room and a private snug.
  • 24-hour CCTV.
  • On-site presentation, cinema and function room available for hire.
  • Private parking available on a first come first served basis, at additional cost.
  • On-site gym access available at additional cost.
  • Disability Access. Each suite has its own key fob & access control.

Please refer to the availability schedule below.

Suites Available Size SQ FT. Excluding slopes (useable areas) Size SQ FT. Inclusive of slopes Monthly Rent (inclusive of service charge) plus VAT
Suite A Ground Floor 188.00 188.00 £650.00
Suite B Ground Floor 188.00 188.00 £650.00
Suite D Ground Floor 183.00 183.00 £700.00
Suite G First Floor 130.00 130.00 £450.00

All rent is inclusive of service charge and subject to VAT. Please note, a deposit equivalent to one month's full rent will be required.

Service Charge: The Service Charge includes the following:

High speed fibre Internet
Access Control key fobs on external doors and individual suites
Wireless door entry system with telephone routing/access control for deliveries/visitors
Cleaning of public /common spaces
Window cleaning
Heat, light and power with both air conditioning and radiators in each suite
General office waste disposal
Fair use of meeting rooms
Individual suite post boxes
General grounds maintenance
Building maintenance including exterior décor, plumbing, fire alarm and drainage repairs.
24-hour CCTV with security and cameras maintenance

Extras:
Telephone and reception/answering services at additional cost.
Virtual postal addresses can be offered on a per business basis.
Legal services and administrative support are available on-site at additional cost.
Office desks can be provided at cost.
Access to an on-site games/recreational room to tenants.
Access to an on-site audio-visual room with use of a 4k projector with a 150-inch screen and seats for up to 15 persons on an individual booking basis.
On-site gym access at extra cost.
On site production studio available at extra cost.

Meeting Rooms: The Arch has a meeting room reserved for the exclusive use of the companies in the building. An online booking diary and Access Control system is in place as these rooms are subject to a fair usage policy. Additionally, a private snug is also available subject to a fair use policy.

Similar Property