16 Endbutt Lane, Crosby, Liverpool, Merseyside, L23

Under offer £9,500 Per Annum

  • Ground floor retail unit.
  • Prominent frontage to Endbutt Lane.
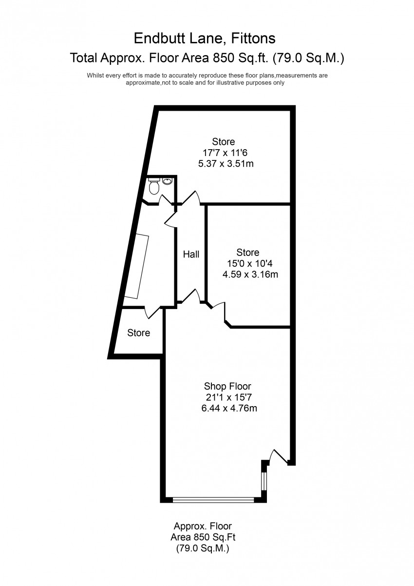
  • Approx. 837 sq. ft (79.0 Sq.M.)
  • Open plan shop floor with ancillary storage and WC facilities.
  • Suitable for a variety of retail and service uses (STP).
  • Available by way of a new lease.

The subject property is a ground floor retail unit extending to approximately 837 square feet. Internally, the accommodation provides a large open-plan sales area to the front, with ancillary storage rooms, hall and WC facilities to the rear.

The shop floor benefits from a full glazed display frontage with fascia signage, carpet floor covering, suspended ceiling with recessed fluorescent lighting and painted plastered walls. To the rear, ancillary rooms provide additional storage with a mix of vinyl/laminate floor coverings, painted walls and surface-mounted power trunking with multiple sockets. Lighting is provided by a combination of suspended ceiling panels and fluorescent fittings.

The property offers flexible space suitable for a variety of uses, subject to the necessary consents and permissions.

Similar Property