2b Manning Road, Southport , Merseyside, PR8

Under offer £175,000 Guide Price

  • Former physiotherapy / health clinic, suitable for a variety of uses, subject to the necessary permissions
  • Plentiful on-site car parking
  • Excellent location close to Southport town centre
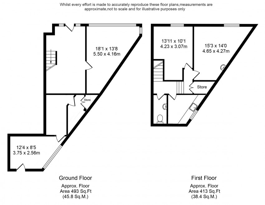
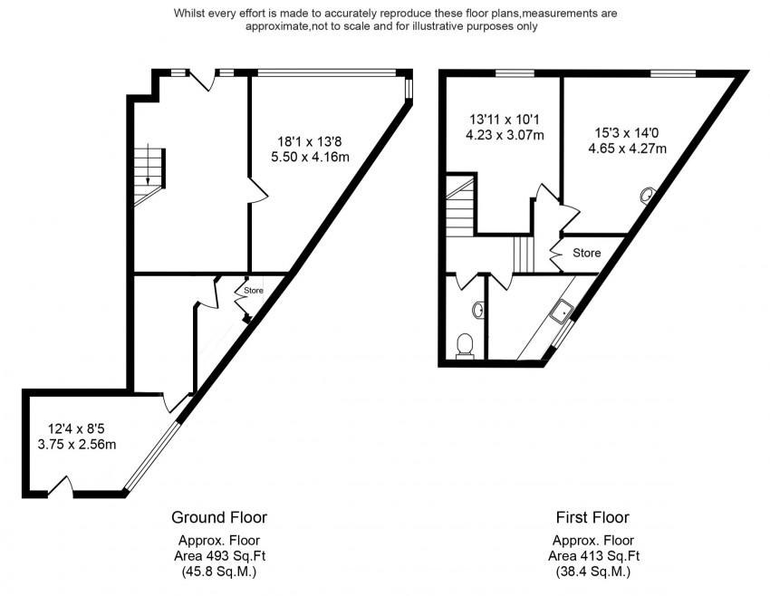
  • Well-appointed throughout with reception, waiting area, four treatment rooms and two bathrooms.
  • Offered with vacant possession
  • Certification available for electrics and gas safety

A well-presented former physiotherapy clinic arranged over two floors, offering flexible accommodation suitable for a variety of professional, healthcare, or office uses (subject to necessary consents).

The property features:
Reception and waiting area
Four treatment/consultation rooms with karndean flooring
Kitchen/staff facilities
WC facilities
Plentiful on-site car parking
Gas central heating and certified electrical systems

The property is offered with vacant possession and would suit either an owner-occupier or as a SIPP (Self-Invested Personal Pension) investment purchase. We understand the property has the benefit of soundproofing to the neighbouring residential property.

Similar Properties