203 Lord Street, Southport, Southport, Merseyside, PR8

Under offer £14,950 Per Annum

  • Prominent position on Southport's prime retailing street, Lord Street
  • Attractive ground floor retail unit with additional lower ground floor sales/storage space
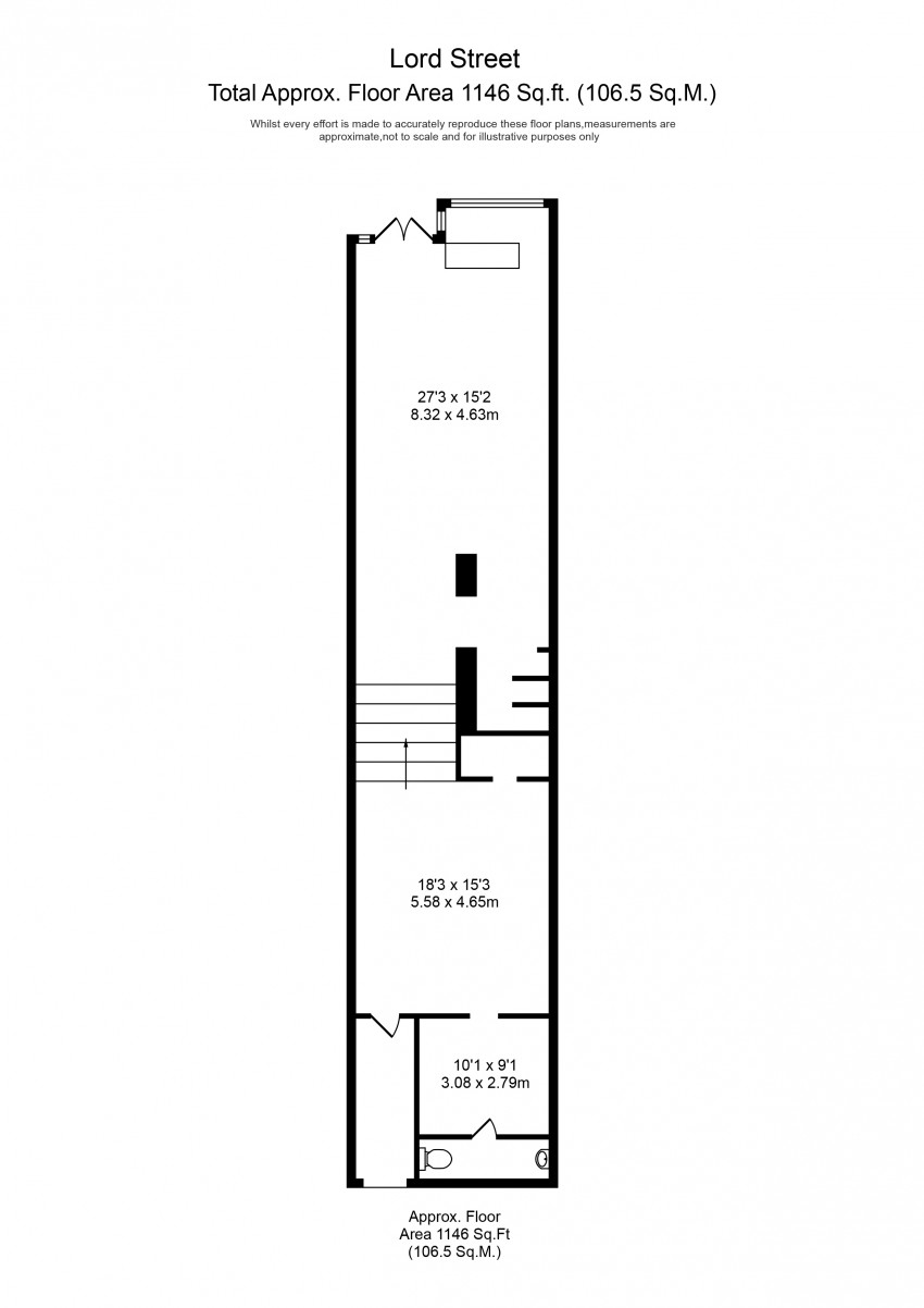
  • Approx. 1,029 sq.ft. (95.68 sq.m.) NIA total floor area
  • Excellent glazed shop frontage providing high visibility and strong branding opportunity
  • Located in an established retail parade with both national and independent occupiers
  • Available on flexible new lease terms at £14,950 per annum (no VAT)
  • Potential eligibility for Small Business Rates Relief

The property comprises a well-presented ground floor retail unit with a lower ground floor that can be utilised for additional sales, storage, or staff accommodation.

The ground floor benefits from a wide glazed shop frontage directly onto Lord Street, creating excellent display opportunities and natural light throughout.
The unit is currently fitted out to a good standard for retail use, with features including:

Suspended ceiling with inset lighting
Carpeted flooring
Open-plan sales area providing flexibility for a range of retail layouts
Rear staircase providing access to the lower ground floor.

The lower ground floor provides additional retail or storage space, along with ancillary accommodation suitable for stock, office use, or staff facilities. The premises would suit a variety of retail, leisure, or service-based operators (subject to planning).

Similar Properties