4 Smithy Walk, Burscough, Ormskirk, Lancashire, L40

Under offer £285,000 for the Freehold

  • Mixed-Use Investment Opportunity
  • Prominent mixed-use investment comprising retail and residential accommodation
  • Burscough town centre location with strong visibility from A59 (Liverpool Road North)
  • Ground floor retail unit of approx. 1,600 sq ft with return frontage
  • Large First-floor two-bedroom flat with separate access from Lord Street
  • Offered with vacant possession - ideal for owner-occupiers or investors
  • Attractive freehold opportunity with scope for rental income and value-add modernisation

This attractive freehold mixed-use property comprises a well-positioned retail unit at ground floor level together with spacious first-floor residential accommodation. Occupying a prominent corner plot in the centre of Burscough, the property benefits from excellent visibility from multiple approaches. It offers flexibility for both investors seeking a strong rental yield and owner-occupiers looking for a combination of trading premises and living space.

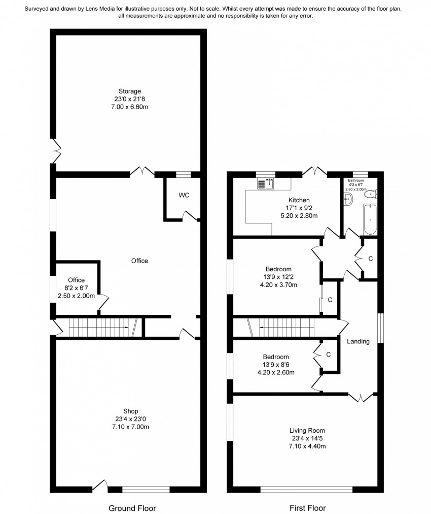
Ground Floor Retail Unit:
The ground floor retail unit extends to approximately 1,000 sq ft of open-plan sales area, complemented by rear ancillary space. A former rear yard has been converted to create an additional 600 sq ft of storage, enhancing the functionality of the premises for a wide variety of retail or service uses. The shopfront presents a modern and professional appearance with a suspended ceiling, recessed heating and cooling system, and return frontage to maximise display potential.

Security is well catered for with roller shutters to the frontage, while a prominent box fascia provides an ideal opportunity for visible signage. The property occupies an excellent trading position and will be offered with vacant possession on completion, allowing immediate occupation by a new business.

First Floor Flat (Accessed Separately from Lord Street):
The first-floor accommodation is accessed independently from Lord Street and extends across the full footprint of the original building. Internally, the flat provides a spacious and practical layout, including a generous lounge, two well-proportioned double bedrooms, a reception hall, fitted kitchen, and a bathroom with WC.

The flat is independently metered for gas and electricity and benefits from a gas-fired combi boiler. While the accommodation is functional and currently occupied, it would benefit from a programme of modernisation, offering the incoming purchaser the opportunity to add value.

EPCs for both the retail unit and the residential flat are available on request. A Land Registry title plan can also be provided, together with supporting safety certifications, including electrical and gas certificates. An Asbestos Management Report is available on request.