45 - 47 London Street, Southport, Merseyside, PR9

Available £425,000 Guide Price

  • Prime mixed-use investment in Southport town centre
  • The property is offered for sale subject to the existing leases and tenancies
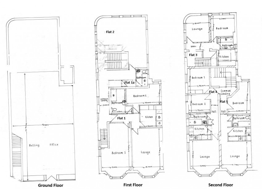
  • Double-fronted, self-contained ground floor unit let to Ladbrokes Betting & Gaming Ltd until November 2031 at £12,800 per annum
  • Upper floors comprise 6 self-contained residential flats, currently producing £29,400 per annum.
  • Total current rental income: £42,200 per annum
  • Residential rents considered concessionary, with potential to increase to market levels
  • All flats have gas central heating (except Flat 1A with electric heating)
  • Full supporting documentation: safety certs, HMO licence, EPCs
  • Freehold title

A substantial end-terraced three-storey building of traditional brick construction beneath a pitched roof.

The ground floor comprises a double-fronted, self-contained commercial unit extending to approximately 143.5 sq.m (1,544 sq.ft) (source: VOA), currently occupied by Ladbrokes Betting & Gaming Ltd.

The upper floors provide six self-contained residential flats, accessed independently via a side entrance. The flats are separately metered for utilities, benefit from a valid HMO licence, and have appropriate safety certifications in place.

Similar Properties