Brook House, Southport Business Park, Wight Moss Way, Southport, Southport, Merseyside, PR8

Under offer £105,000 Per Annum

  • Grade A Modern Detached Two Storey Headquarter Style Offices
  • Plentiful On Site Parking
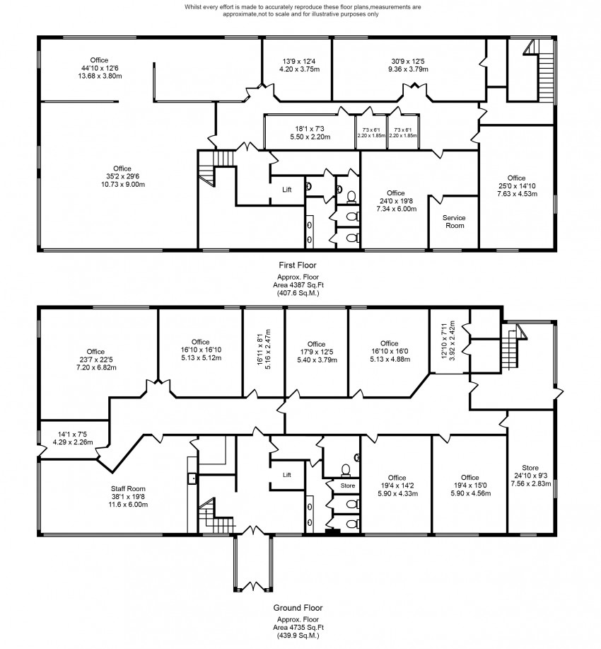
  • Approximately 7,600 sq ft NIA (c. 9,120 sq ft GIA)
  • Detached Premises on Secure Plot
  • Rare Opportunity to Lease on Southport Business Park
  • Available with the Benefit of a New Lease

Grade A Office Accommodation

Constructed in 2006 the accommodation offers high specification Grade A headquarter style offices with fully glazed entrance reception, comfort cooling/heating throughout and suspended ceilings incorporating recessed lighting.

Male, female and disabled WC facilities are provided in addition to a well appointed kitchen/staff canteen area.

Portal frame construction over 2 floors with impressive glazed entrance and tinted fenestration to all elevations provide for excellent retained light to both floors, which currently comprise a variety of open plan and private offices. However, scope remains for 2x open plan floor models by way of demountable partitioning.

Copies of the original and as built drawings and specification are available on application.

The availability represents a rare opportunity to rent an office building of this calibre in the North Sefton market with the benefit of a new lease.

Similar Properties