31-33 Hoghton Street, Southport, Merseyside, PR9

Under offer £400,000 Offers in Excess of

  • Part Let Office Investment
  • Rare Town Centre Office Opportunity with 18 Car Parking Spaces
  • 31 Hoghton Street and 5 car parking spaces Let to Natwest at a Rental of £11,500 Per Annum Until 2031 (Vacant Possession may be possible if required)
  • Vacant First Floor Offices First Floor Offices 31/33 Hoghton Street
  • Professional Ground Floor Offices 33 Hoghton Street
  • Southport Business District
  • Approximately 2,859 Sq Ft NIA Over Ground and First Floor
  • No VAT on Purchase Price
  • Estimated Total Rental Income when fully let at estimated rental, approximately £40,260 per annum

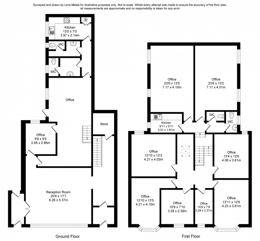
The subject property comprises of is arranged over ground and first floor, with glazed frontage with prominent fascia signage, providing visibility and presence within the Hoghton Street business district and substantial car parking providing 18 car parking spaces in total.

The property comprises of three separate and self contained areas.

31 Hoghton Street is a ground floor self contained professional office. This is under lease to Natwest until 2031 at annual rental of £11,500 to include 5 car parking spaces. Please note we understand vacant possession could be provided if required.

33 Hoghton Street is a self contained ground floor office with glazed frontage incorporating an integral glazed pedestrian door. Internally the front area is divided into two open plan areas, with break out kitchen and w.c.'s to the rear. Offered with 1 car parking space quoting rental at £8,950 per annum.

31-33 Hoghton Street are the self contained first floor offices with dedicated entrance with fascia signate above off Hoghton Street. The substantial office accommodation extending to approximately 1,395 sq ft NIA and provides a variety of private, open plan and meeting/training rooms. Quoting rental to let for these offices is £15,400 per annum to include 5 car parking spaces.

The additional 7 car parking spaces could also be let to generate additional rental income. Estimate £630 per annum per space

Similar Properties