Unit 2, 26a Hart Street, Southport

Under offer £12,000 Per Annum

  • Self contained showroom / warehouse/ office
  • Approximately 1,650 Sq Ft GIA
  • Established employment location near Southport Town Centre
  • No VAT on Rental

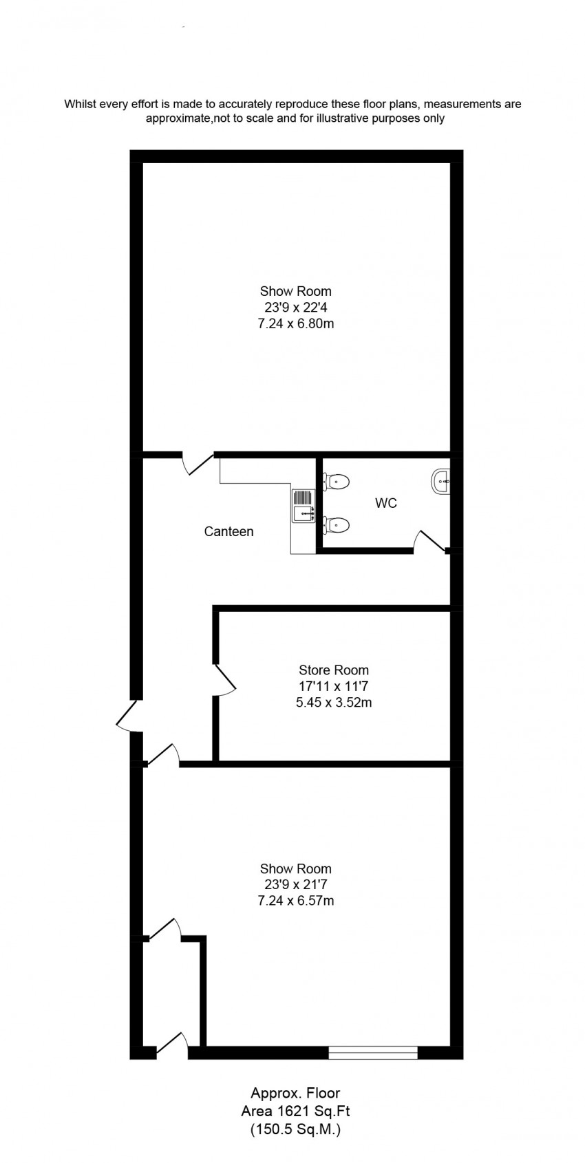
The subject property comprises of a self-contained showroom/warehouse/office with yard area to the front providing plentiful parking. Internally, the property is laid out as a showroom area with storeroom to the front, canteen and WC beyond, together with a store area/former showroom to the rear. Roller shutters are fixed to the front elevation in front of the window.

Similar Properties