Newbuild Retail Premises, Adjacent To 139 Cambridge Road, Southport, Merseyside

Available £59,400 Per Annum

  • Prominent two-storey newbuild retail premises.
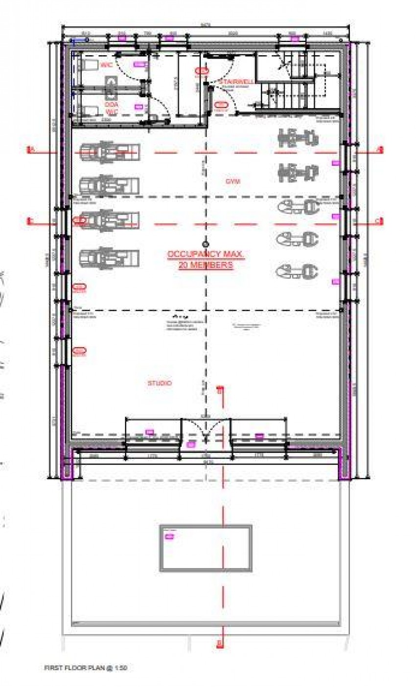
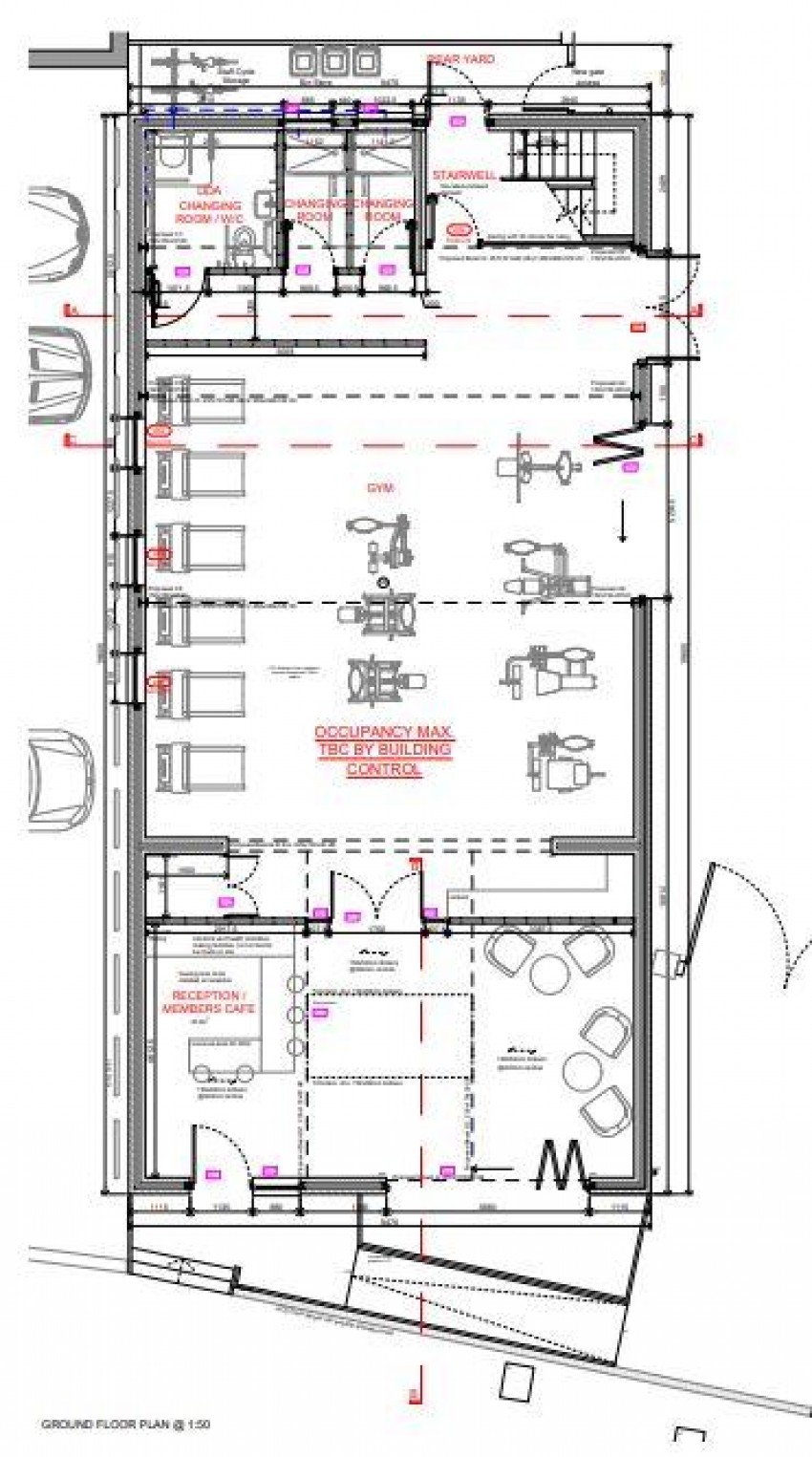
  • Extending to approximate 280.63 m2 (3,020 sq ft GIA) over ground and first floors.
  • Planning consent for café and gym, but suitable for alternative uses such as retail, restaurant, bar, etc. subject to the necessary consents.
  • Under construction & nearing practical completion.
  • Currently offered to shell, with scope for the premises to be altered subject to the ingoing tenant's requirements.
  • Available by way of a new lease.

Nearing practical completion, the property is constructed over ground and first floors, with the front section onto Cambridge Road, which was originally proposed for a café area, with open plan gym areas to the rear of the ground floor, with associated changing rooms and WCs, together with stairs to the open plan first floor area.

The property is currently offered to a shell finish, but the property could be adapted to suit the ingoing requirements of the future occupier. It could be suitable for a variety of alternative commercial uses such as retail, bar, restaurant, gym, etc., subject to the necessary consents.

Similar Properties