Land At 15-17 Oxford Road, Birkdale, Southport

Available £1,100,000 for the Long Leasehold

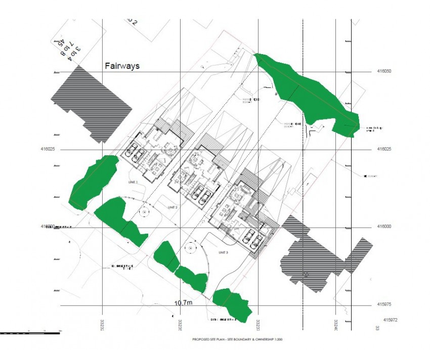
  • Cleared development site.
  • Indicative plans prepared for six x three bedroom luxury apartments each at 134.8 square metres.
  • Together with a three-bedroom apartment to lower ground floor extending to 161.4 square metres with private terrace.
  • Plus detached dwelling to the rear of plot, indicative only, subject to planning.
  • Alternatively, planning consent in place for two x large three/four storey dwellings, each offering approximately 586 square metres of accommodation GIA available as individual plots or as a whole.
  • Highly regarded prestigious and established 19th century location in Birkdale near Southport.
  • 999 year long leasehold Title.
  • Conditional proposals for alternative schemes invited.

The cleared site currently has planning permission (DC/2021/00789) for the demolition of the existing redundant former nursing home and the construction of three very large detached three/four storey dwellings with associated integral garages, one of which is now approaching practical completion.

The land could be available by way of plot sales or alternatively as a whole.

Indicative plans have also been prepared for a newbuild block of seven luxury apartments constructed over lower ground, ground, first and second floors.

The six apartments to ground, first and second floors will provide three bedrooms, master with en suite, bathroom, utility room, kitchen and lounge, together with lift access from a communal entrance.

The lower ground floor provides a larger also three-bedroomed apartment, all three bedrooms with en suite facilities, an open plan lounge/dining area, separate utility room and kitchen, in addition to two private terraces.

This indicative scheme also provides for a new access road from Oxford Road, which in turn leads to a proposed detached dwelling to the rear.

Offers are invited for either the site as a whole, on a Subject to Planning basis for the scheme as shown, for alternative redevelopment proposals, or for individual plot sales for the current consented scheme.

Similar Property