62-64 Liverpool Road North, Burscough, lancashire

Under offer £179,950 for the Freehold

  • Double fronted retail unit.
  • Scope for alternative ground floor uses and first floor residential conversion - subject to the necessary consents.
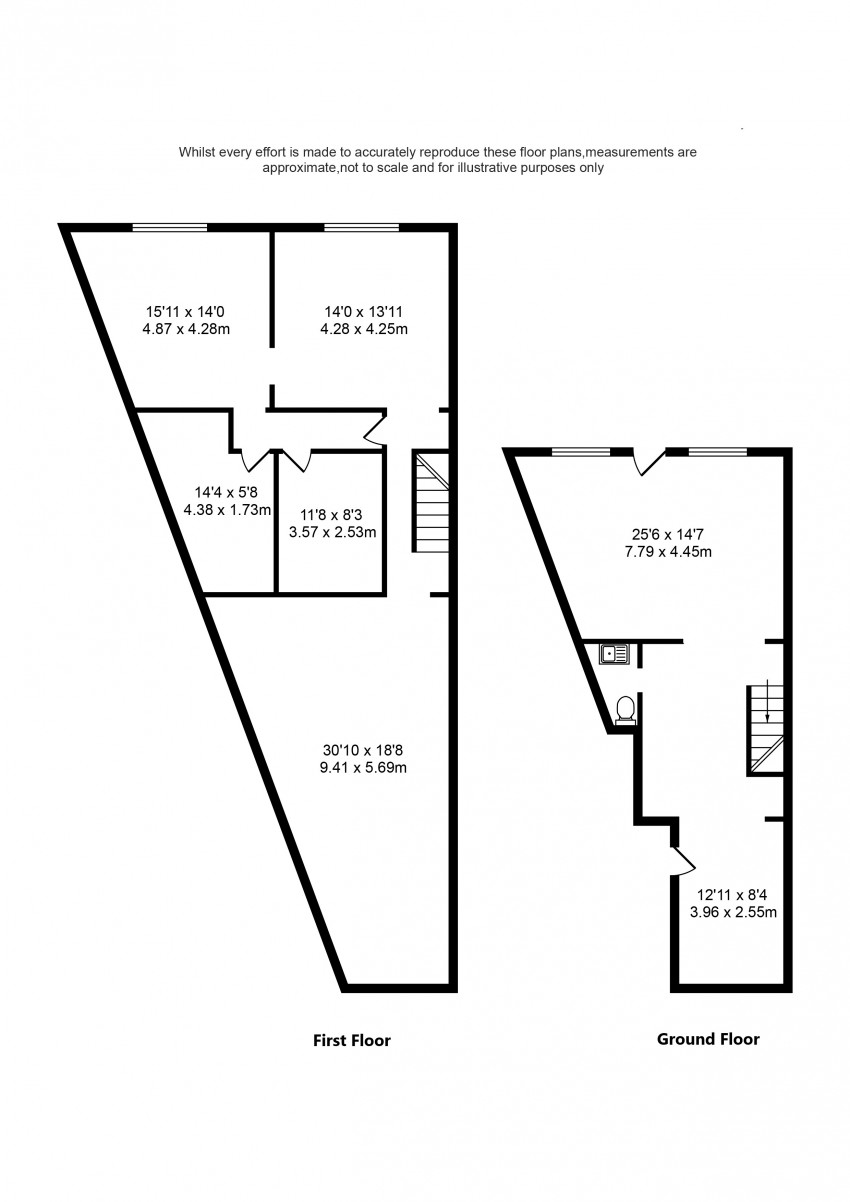
  • Approximately 1,590 square feet NIA over ground and first floors.
  • Offered with vacant possession & available due to relocation of longstanding tenant.
  • Prominent High Street position to the A59 Liverpool Road North in Burscough.

Available due to relocation of the existing long-term occupier, the property has for many years traded as a bike store, with double fronted glazed shopfront, with substantial fascia signage above, leading into an open plan retail area and former bike workshop/preparation to the rear. The first floor leads to a number of former storage rooms, in addition to a large first floor outrigger extension to the rear. The property has a basement and external rear store.

Externally, the property also has a side passage leading to the rear of the property, which in turn may provide scope for alternative uses such as residential conversion of the upper floors, subject to the necessary consents.

Similar Properties